Pre-Engineered San Diego ADU Floor Plans & Custom Designs

Finding the right layout is the foundation of a high-yield investment. MEE Builders has engineered a comprehensive portfolio of San Diego ADU floor plans, ranging from highly efficient 500 sq. ft. 1-bedroom units to expansive 1,200 sq. ft. multi-family layouts. Every blueprint is meticulously designed to maximize livable square footage, ensure seamless continuous load paths, and strictly comply with the 2026 San Diego Municipal Code and local setback requirements.

Filter San Diego Compliant ADU Blueprints by Bedroom and Bath

Use the filters below to explore our proven architectural layouts. Whether you are executing an SB-9 lot split requiring a sprawling 3-bedroom unit, or maximizing a compact backyard with a 2-bedroom rental suite, these plans are engineered for capital efficiency, rapid permitting, and tenant-proof durability.

ADU-Floor-plans-2-1.pdf2BADROOM_-1-BATROOM-FLOOR-PLAN-576-S
ADU-Floor-plans-2-1.pdf2BADROOM_-1-BATROOM-FLOOR-PLAN-576-S
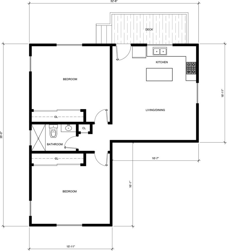
2-BADROOM_-2-BATROOM-FLOOR-PLAN-1120-S
2-BADROOM_-2-BATROOM-FLOOR-PLAN-1120-S
ADU-Floor-plans-2-24.pdf2-BADROOM_-2-BATROOM-FLOOR-PLAN-1066-S
ADU-Floor-plans-2-24.pdf2-BADROOM_-2-BATROOM-FLOOR-PLAN-1066-S
ADU-Floor-plans-2-28.pdf2-BADROOM_-2-BATROOM-FLOOR-PLAN-800-S
ADU-Floor-plans-2-28.pdf2-BADROOM_-2-BATROOM-FLOOR-PLAN-800-S
ADU-Floor-plans-2-29.pdf2-BADROOM_-2-BATROOM-FLOOR-PLAN-748-S
ADU-Floor-plans-2-29.pdf2-BADROOM_-2-BATROOM-FLOOR-PLAN-748-S
ADU-Floor-plans-2-30.pdf2-BADROOM_-2-BATROOM-FLOOR-PLAN-794-S
ADU-Floor-plans-2-30.pdf2-BADROOM_-2-BATROOM-FLOOR-PLAN-794-S
2BADROOM_-1-BATROOM-FLOOR-PLAN-789-S
2BADROOM_-1-BATROOM-FLOOR-PLAN-789-S
ADU-Floor-plans-2-2.pdf2BADROOM_-1-BATROOM-FLOOR-PLAN-720-S
ADU-Floor-plans-2-2.pdf2BADROOM_-1-BATROOM-FLOOR-PLAN-720-S
ADU-Floor-plans-2-3.pdf2BADROOM_-1-BATROOM-FLOOR-PLAN-596-S
ADU-Floor-plans-2-3.pdf2BADROOM_-1-BATROOM-FLOOR-PLAN-596-S
ADU-Floor-plans-2-4.pdf2BADROOM_-1-BATROOM-FLOOR-PLAN-870-S
ADU-Floor-plans-2-4.pdf2BADROOM_-1-BATROOM-FLOOR-PLAN-870-S
2-1-bathroom-748-SF
2-1-bathroom-748-SF
2-bathroom-748-SF
2-bathroom-748-SF
1BADROOM_-1-BATROOM-FLOOR-PLAN-372-S
1BADROOM_-1-BATROOM-FLOOR-PLAN-372-S
3-BADROOM_-1-1_2-BATROOM-FLOOR-PLAN-1029S
3-BADROOM_-1-1_2-BATROOM-FLOOR-PLAN-1029S
2-bathroom-1105-SF
2-bathroom-1105-SF
2-bathroom-1190-SF
2-bathroom-1190-SF
3-bed-2-1-bath-1198sf
3-bed-2-1-bath-1198sf
1198-sf-3-bed-2-1-bath
1198-sf-3-bed-2-1-bath
2-bathroom-1000-SF
2-bathroom-1000-SF
1BADROOM_-1-BATROOM-FLOOR-PLAN-400-S
1BADROOM_-1-BATROOM-FLOOR-PLAN-474-S
1BADROOM_-1-BATROOM-FLOOR-PLAN-474-S
1BADROOM_-1-BATROOM-FLOOR-PLAN-456-S
1BADROOM_-1-BATROOM-FLOOR-PLAN-456-S
1BADROOM_-1-BATROOM-FLOOR-PLAN-400-S
1BADROOM_-1-BATROOM-FLOOR-PLAN-400-S
1BADROOM_-1-BATROOM-FLOOR-PLAN-485-S
1BADROOM_-1-BATROOM-FLOOR-PLAN-485-S
1BADROOM_-1-BATROOM-FLOOR-PLAN-488-S
1BADROOM_-1-BATROOM-FLOOR-PLAN-520-S
1BADROOM_-1-BATROOM-FLOOR-PLAN-520-S
1BADROOM_-1-BATROOM-FLOOR-PLAN-648-S
1BADROOM_-1-BATROOM-FLOOR-PLAN-648-S
1BADROOM_-1-BATROOM-FLOOR-PLAN-697-S
1BADROOM_-1-BATROOM-FLOOR-PLAN-697-S
1BADROOM_-1-BATROOM-FLOOR-PLAN-734-S
1BADROOM_-1-BATROOM-FLOOR-PLAN-734-S
1-bed-1-bath-468-sf
1-bed-1-bath-468-sf
1BADROOM_-1-BATROOM-FLOOR-PLAN-400-S
1BADROOM_-1-BATROOM-FLOOR-PLAN-400-S
4-BADROOM_-2-BATROOM-FLOOR-PLAN-1193-S
4-BADROOM_-2-BATROOM-FLOOR-PLAN-1193-S
2-bathroom-1191-SF
2-bathroom-1191-SF
2-bed-2-bath-1020-sf
2-bed-2-bath-1020-sf
1-bed-1-bath-468-sf
1-bed-1-bath-468-sf

Slashing Permitting Timelines with Code-Ready ADU Layouts

Custom architecture is beautiful, but it often introduces severe bureaucratic friction and prolonged municipal review cycles. By starting your project with one of our pre-engineered, site-tested floor plans, we drastically accelerate the San Diego Development Services review process. These layouts have already been optimized for Title 24 energy efficiency, strict wildland-urban interface (WUI) fire separations, and optimal plumbing manifold routing—saving you thousands in preliminary architectural fees.

Scroll to Top